Villa singola in vendita

Castellanza, Via borsano
€ 360.000
4 locali 4 locali
232 Mq 232 Mq
2 bagni 2 bagni

Villa singola in vendita

Castellanza, Via borsano

Descrizione annuncio

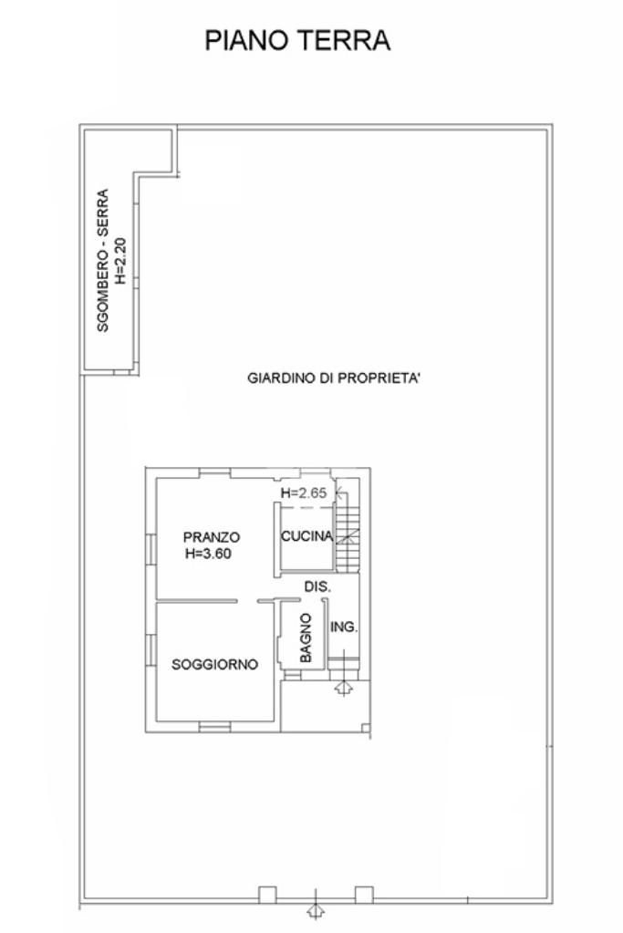
Villa Singola a Castellanza: Indipendenza e Classe Energetica D

Situata in una posizione strategica e centrale, la proprietà permette di godere di tutti i principali servizi (supermercato, scuole, farmacia, bar…) a pochi passi da casa. La soluzione unisce l’indipendenza a un'ottima efficienza energetica (Classe D).

La villa si dispone su due livelli abitativi e si distingue per un layout flessibile, capace di adattarsi a diverse esigenze familiari. Attualmente è organizzata per ospitare due zone living separate, ma la configurazione originale prevede:

Piano Terra: Ingresso, soggiorno, sala da pranzo, cucinotto con accesso alla cantina interrata e primo bagno.Piano Primo: Due ampie camere da letto (di cui una che potrebbe disporre di cabina armadio e affaccio su un terrazzino privato) e secondo bagno al piano ammezzato.

La proprietà è circondata da un gradevole giardino privato, ideale anche per chi possiede animali domestici. L’immobile si presenta in buone condizioni grazie a interventi di manutenzione effettuati negli anni: gli interni sono stati ristrutturati nel 2003, mentre nel 2013 è stato eseguito un importante restyling esterno con l’utilizzo del cappotto termico e isolato il sottotetto. Di recente è stata installata la caldaia a condensazione. Tutti interventi che garantiscono un'ottima efficienza energetica.

Pertinenze:

Box Doppio:Ampio garage sviluppato in lunghezza, perfetto per due auto e spazio scaffalatura.Locale Multiuso: In corpo staccato, sul retro della villa, si trova un comodo locale a piano terra adibito a lavanderia/serra.
Mostra tutto

Nelle vicinanze

Trasporto pubblico Trasporto pubblico
Legnano
Legnano
1,8 Km
Castellanza
Castellanza
1,8 Km
Castellanza - Corso Matteotti, Via Cantoni, LIUC
Castellanza - Corso Matteotti, Via Cantoni, LIUC
400 m
Castellanza - Corso Matteotti, ex passaggio a livello
Castellanza - Corso Matteotti, ex passaggio a livello
720 m
Ricariche auto elettriche Ricariche auto elettriche
Castellanza Testori | EnelX
190 m
Castellanza LIUC | EnelX
470 m
Castellanza Brambilla | EnelX
540 m
Tigros Castellanza
660 m
Castellanza San Camillo | EnelX
1,0 Km
Scuole Scuole
Scuola Superiore Enrico Fermi
120 m
Scuola Secondaria di Primo Grado Maria Montessori
200 m
Scuola Primaria Maria Montessori
260 m
LIUC - Università Carlo Cattaneo
590 m
Istituto Maria Ausiliatrice
700 m
Farmacia Farmacia
Farmacia
710 m
Farmacia Borgo San Martino
830 m
Farmacia Guarnieri
1,1 Km
Farmacia Buon Gesù
1,5 Km
Parafarmacia Esselunga
1,6 Km
Ospedali Ospedali
Humanitas Mater Domini
670 m
Multimedica - Clinica Santa Maria
2,2 Km
Ospedale vecchio di Legnano
2,9 Km
Pronto Soccorso Ospedale Civile Di Legnano
2,9 Km
Supermercati Supermercati
Il Gigante
120 m
Tigros
650 m
MD
810 m
Bottega natura
900 m
IN's Mercato
1,0 Km
Negozi Negozi
Negozi
640 m
OVS
890 m
GustaMi
1,3 Km
Olbratex
1,4 Km
Dispensa senza glutine
1,6 Km
Bar Bar
Rex Bibendi
420 m
Caffè Club
510 m
Drink Me
710 m
Ritual Club
830 m
Club Mediterranee
1,2 Km
Ristoranti Ristoranti
Nessie
130 m
Antica Farmacia dei sani
270 m
Lin Sushi
310 m
Ristoranti
370 m
I taglieri del re
510 m
Mostra tutto

Caratteristiche

Rif.:
61168873
Piano:
Su più livelli di 3
Totale piani:
3
Box:
2
Posti auto:
1
Terrazzi:
1
Mostra tutto
Prezzo Prezzo
€ 360.000
Rata mutuo Rata mutuo
€ 1.710 / mese
Spese annue Spese annue
€ 0
Proponi il tuo prezzoProponi il tuo prezzo

Classe Energetica

D
D
D
D
D
D
D
D
D
EP globale non rinnovabile:
193.93 kW h/m² anno
EP globale rinnovabile:
0.00 kW h/m² anno
EP invernale del fabbricato:
EP estiva del fabbricato:
Anno di costruzione:
1930
Riscaldamento:
Autonomo
Tipo impianto:
A radiatori
Tipo alimentazione:
Metano

Ti interessa visionare l'immobile?

Fissa un appuntamento  Fissa un appuntamento

Richiedi informazioni

Clicca su Leggi per aprire l'informativa
* Questi campi sono obbligatori

Calcola il tuo mutuo

Semplice e senza impegno
Anticipo

( % )
Mutuo

( % )

pochi semplici passi

inserisci i tuoi dati
Questionario completato
Grazie per aver richiesto un appuntamento senza impegno con un nostro Consulente del Credito e Assicurativo.

Hai inserito correttamente tutti i dati necessari e a breve riceverai una e-mail con un link da convalidare per inviare i tuoi dati.
Affiliato
Studio Castellanza Sas
Corso Matteotti, 11 21053 Castellanza (VA)

Il nostro staff


  • Vincenzo Olivadoti
    Affiliato

  • Ala Zugravu
    Coordinatrice
Corso Matteotti, 11 21053 Castellanza (VA)
Zona: Castellanza-Olgiate Olona
Mostra su mappa
Orari: dalle 09.00 alle 12.30 dalle 15.00 alle 19.30.Sabato mattina dalle 9.00 alle 12.30. Sabato pomeriggio su appuntamento.
Affiliato
Studio Castellanza Sas
Corso Matteotti, 11 21053 Castellanza (VA)

2026 Tecnocasa Franchising S.p.A. - P. IVA 08365160152 - Via Monte Bianco 60/A 20089 Rozzano (MI). Ogni agenzia ha un proprio titolare ed è autonoma. Privacy policy | Policy utilizzo | Cookie policy