Bifamiliare in vendita

Castellanza, Via della Muffa
€ 365.000
7 locali 7 locali
326 Mq 326 Mq
3 bagni 3 bagni

Bifamiliare in vendita

Castellanza, Via della Muffa

Descrizione annuncio

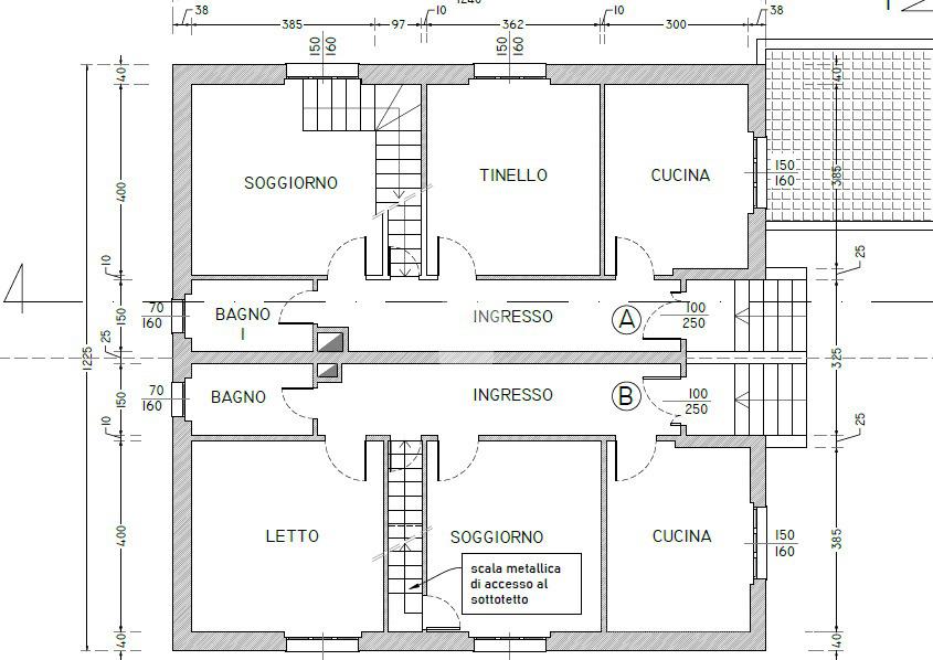
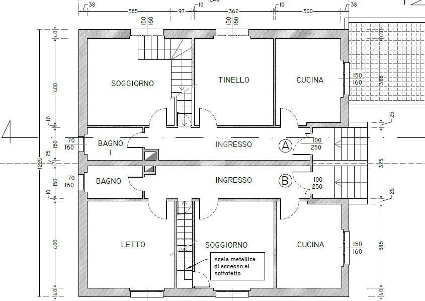
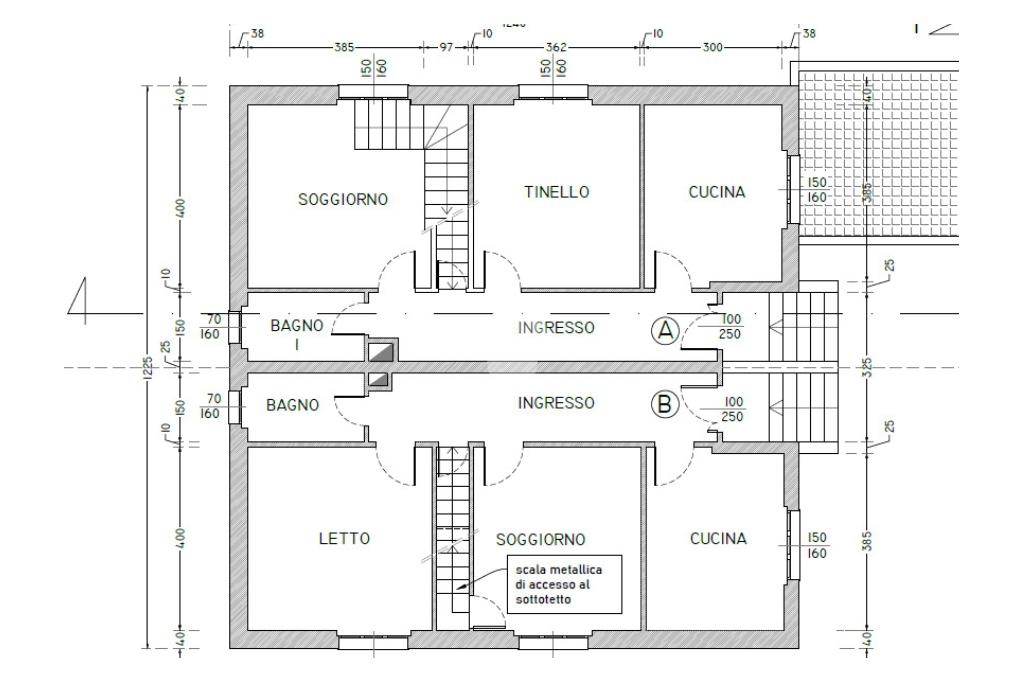
Proponiamo una spaziosa villa bifamiliare in vendita, ideale per due famiglie. In zona residenziale e comoda per raggiungere anche a piedi la stazione ferroviaria Trenord.

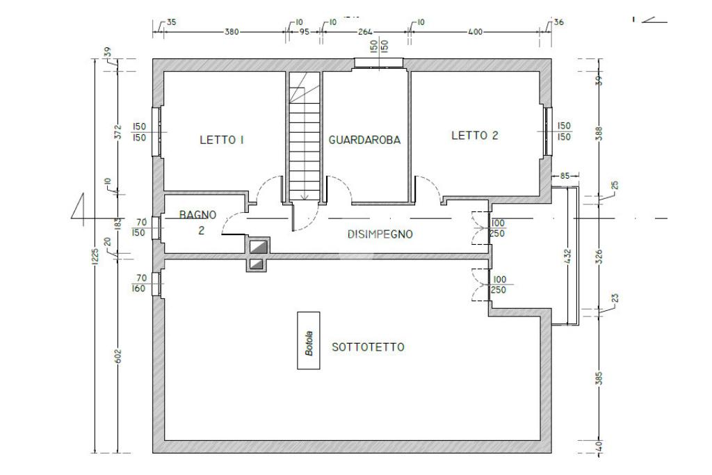
L’immobile, di 332 mq, si sviluppa su più livelli, si compone di due unità abitative attigue, con ingresso pedonale e impianti separati tra loro. Una soluzione, è organizzata tutta su un livello, con la possibilità di recuperare al piano superiore la sua porzione di sottotetto, al fine di creare altre stanze; viceversa l’altra soluzione ha una scala interna che conduce al piano superiore, dove troviamo da tre camere da letto e un bagno. Entrambe le soluzioni dispongono a piano rialzato di cucina abitabile, soggiorno, bagno e già una camera da letto sul piano.

Entrambe le abitazioni hanno un locale in cantina, dove è collocata la propria caldaia per riscaldamento e acqua calda sanitaria. A piano primo è presente un terrazzo, al quale si può accedere da entrambe le unità; offre uno spazio esterno privato per momenti di relax. L’area esterna di circa 500 mq è condivisa, la sua maggiore ampiezza è sul fronte della villa e risulta ben esposta al sole.

La costruzione risale alla metà degli anni sessanta, è ben tenuta, ma necessita di alcuni lavori di ammodernamento. Le certificazioni energetiche sono in corso di presentazione.

Mostra tutto

Nelle vicinanze

Trasporto pubblico Trasporto pubblico
Castellanza
Castellanza
1,0 Km
Busto Arsizio
Busto Arsizio
2,0 Km
Olgiate Olona - Buon Gesù
Olgiate Olona - Buon Gesù
710 m
Buon Gesù
Buon Gesù
780 m
Ricariche auto elettriche Ricariche auto elettriche
Castellanza Testori | EnelX
670 m
Castellanza Brambilla | EnelX
670 m
Lidl Olgiate Olona
1,0 Km
Flash Car & Boats Castellanza | EnelX
1,2 Km
Castellanza LIUC | EnelX
1,2 Km
Scuole Scuole
Scuola Primaria Alessandro Manzoni
210 m
Scuola Superiore Enrico Fermi
770 m
Scuola Materna Santa Teresa
810 m
Istituto Statale di Istruzione Superiore Cipriano Facchinetti
840 m
Scuola Primaria Maria Montessori
950 m
Farmacia Farmacia
Farmacia Buon Gesù
900 m
Farmacia
910 m
Parafarmacia Esselunga
940 m
Farmacia Dei Salici
1,5 Km
Farmacia Borgo San Martino
1,6 Km
Ospedali Ospedali
Humanitas Mater Domini
1,5 Km
Multimedica - Clinica Santa Maria
1,6 Km
Supermercati Supermercati
Aldi
590 m
Il Gigante
910 m
Carrefour
930 m
Esselunga
970 m
Lidl
1,1 Km
Negozi Negozi
Negozi
280 m
GustaMi
650 m
Olbratex
710 m
OVS
1,0 Km
Baby Bazar
1,1 Km
Bar Bar
Rex Bibendi
600 m
Caffè Club
740 m
Caffè Genius
750 m
Ritual Club
840 m
Caffetteria Erika
890 m
Ristoranti Ristoranti
Il Veliero
380 m
Marlin Blue
670 m
I taglieri del re
730 m
Blu Blu
760 m
Il Feroce
800 m
Mostra tutto

Caratteristiche

Rif.:
61124567
Piano:
Su più livelli di 3
Totale piani:
3
Box:
1
Terrazzi:
1
Camere da letto:
5
Mostra tutto
Prezzo Prezzo
€ 365.000
Rata mutuo Rata mutuo
€ 1.734 / mese
Proponi il tuo prezzoProponi il tuo prezzo

Altre caratteristiche

Classe Energetica

G
G
G
G
G
G
G
G
G
EP globale non rinnovabile:
396.67 kW h/m² anno
EP globale rinnovabile:
0.35 kW h/m² anno
EP invernale del fabbricato:
EP estiva del fabbricato:
Anno di costruzione:
1965
Riscaldamento:
Autonomo
Tipo impianto:
A radiatori
Tipo alimentazione:
Metano

Ti interessa visionare l'immobile?

Fissa un appuntamento  Fissa un appuntamento

Richiedi informazioni

Clicca su Leggi per aprire l'informativa
* Questi campi sono obbligatori

Calcola il tuo mutuo

Semplice e senza impegno
Anticipo

( % )
Mutuo

( % )

pochi semplici passi

inserisci i tuoi dati
Questionario completato
Grazie per aver richiesto un appuntamento senza impegno con un nostro Consulente del Credito e Assicurativo.

Hai inserito correttamente tutti i dati necessari e a breve riceverai una e-mail con un link da convalidare per inviare i tuoi dati.
Affiliato
Studio Castellanza Sas
Corso Matteotti, 11 21053 Castellanza (VA)

Il nostro staff


  • Vincenzo Olivadoti
    Affiliato

  • Ala Zugravu
    Coordinatrice
Corso Matteotti, 11 21053 Castellanza (VA)
Zona: Castellanza-Olgiate Olona
Mostra su mappa
Orari: dalle 09.00 alle 12.30 dalle 15.00 alle 19.30.Sabato mattina dalle 9.00 alle 12.30. Sabato pomeriggio su appuntamento.
Affiliato
Studio Castellanza Sas
Corso Matteotti, 11 21053 Castellanza (VA)

2026 Tecnocasa Franchising S.p.A. - P. IVA 08365160152 - Via Monte Bianco 60/A 20089 Rozzano (MI). Ogni agenzia ha un proprio titolare ed è autonoma. Privacy policy | Policy utilizzo | Cookie policy