Attico in vendita

Castellanza, Via San Carlo - Castegnate
€ 380.000
6 locali 6 locali
180 Mq 180 Mq
2 bagni 2 bagni

Attico in vendita

Castellanza, Via San Carlo - Castegnate

Descrizione annuncio

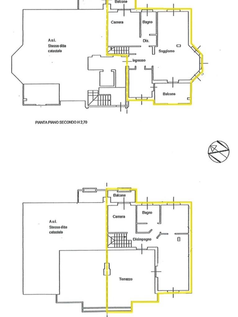
Proponiamo in vendita un magnifico attico duplex con un terrazzo di 35 mq, situato in una delle posizioni più centrali, ambite e servite di Castellanza. Strategicamente posizionato tra La Corte del Ciliegio e la Piazza San Bernardo. L’immobile si trova in un piccolo e signorile stabile edificato del 2003, è privo di barriere architettoniche, dotato di ascensore che conduce al piano interrato per accedere ai garage. L’appartamento, curato nelle finiture, si presenta elegante. Tutta la pavimentazione è rivestita in pregiato parquet, che dona un’atmosfera calda e sofisticata ad ogni ambiente. L’Attico vanta una tripla esposizione ottimale (Est-Sud-Ovest), garantendo una straordinaria luminosità e affacci gradevoli.

Primo livello (zona giorno e camera padronale)

La zona giorno è stata pensata per vivere al meglio la quotidianità e ricevere ospiti:

- La cucina esposta a Est, con il sole al mattino per iniziare al meglio la giornata;

- Il salotto accogliente, esposto a Sud e caratterizzato da un affascinante bow window;

- La sala da pranzo esposta a Ovest, che condivide con il salotto un terrazzino coperto di oltre 10 mq, perfetto per cene all’aperto.

- Completano il piano un primo bagno e una spaziosa camera da letto matrimoniale con balcone.

Una scala a giorno dal disimpegno d’ingresso collega il piano superiore.

Secondo livello e terrazzo.

Il piano superiore, dedicato alla zona notte/relax, offre:

- Un disimpegno che conduce direttamente all’esclusivo e riservato terrazzo di 35 mq;

- Tre comode stanze (attualmente adibite a guardaroba, seconda camera matrimoniale e un ampio locale relax con accesso al terrazzo) di cui una con balcone;

- Un secondo bagno a servizio del piano.

Box auto doppio (opzionale).

- Vi è la possibilità di abbinare all’immobile un ampio box auto (che può ricoverare comodamente due grandi automobili per il lungo) al prezzo di € 30.000,00.”

Non perdere l'opportunità di vivere in un Attico di pregio, con la comodità del centro e la serenità di uno spazio esterno unico.

Mostra tutto

Nelle vicinanze

Trasporto pubblico Trasporto pubblico
Legnano
Legnano
2,2 Km
Castellanza
Castellanza
2,4 Km
Castellanza - Corso Matteotti, Via Cantoni, LIUC
Castellanza - Corso Matteotti, Via Cantoni, LIUC
390 m
Castellanza - Corso Matteotti, ex passaggio a livello
Castellanza - Corso Matteotti, ex passaggio a livello
710 m
Ricariche auto elettriche Ricariche auto elettriche
Castellanza San Camillo | EnelX
240 m
Castellanza LIUC | EnelX
320 m
Tigros Castellanza
550 m
Castellanza Brambilla | EnelX
810 m
Castellanza Testori | EnelX
850 m
Scuole Scuole
Scuola Primaria Edmondo De Amicis
110 m
Istituto Maria Ausiliatrice
230 m
LIUC - Università Carlo Cattaneo
350 m
Scuola Secondaria di Primo Grado Leonardo da Vinci
470 m
Scuola Primaria Maria Montessori
540 m
Farmacia Farmacia
Farmacia
190 m
Farmacia Borgo San Martino
1,1 Km
Farmacia Santa Teresa
1,5 Km
Farmacia Guarnieri
1,6 Km
Farmacia Introini
1,7 Km
Ospedali Ospedali
Humanitas Mater Domini
360 m
Fondazione Raimondi Francesco
2,7 Km
Ospedale vecchio di Legnano
2,8 Km
Pronto Soccorso Ospedale Civile Di Legnano
2,8 Km
Multimedica - Clinica Santa Maria
3,0 Km
Supermercati Supermercati
Tigros
510 m
IN's Mercato
610 m
MD
830 m
Il Gigante
840 m
Bottega natura
890 m
Negozi Negozi
Dispensa senza glutine
1,2 Km
Negozi
1,3 Km
GustaMi
1,7 Km
OVS
1,7 Km
Belli e Monelli
1,9 Km
Bar Bar
Drink Me
710 m
Punta Renas
730 m
Rex Bibendi
860 m
Ritual Club
880 m
Caffè Club
1,3 Km
Ristoranti Ristoranti
La Terrazza
150 m
Ristoranti
180 m
Antica Farmacia dei sani
520 m
Like Sushi & Grill
580 m
Nessie
710 m
Mostra tutto

Caratteristiche

Rif.:
61149981
Piano:
2 di 4 con ascensore (ultimo Piano)
Balconi:
2
Terrazzi:
2
Camere da letto:
3
Arredamento:
Assente
Mostra tutto
Prezzo Prezzo
€ 380.000
Prezzo box Prezzo box
€ 30.000
Rata mutuo Rata mutuo
€ 1.805 / mese
Spese annue Spese annue
€ 2.400
Proponi il tuo prezzoProponi il tuo prezzo

Classe Energetica

D
D
D
D
D
D
D
D
D
EP globale non rinnovabile:
159.28 kW h/m² anno
EP globale rinnovabile:
0.00 kW h/m² anno
EP invernale del fabbricato:
EP estiva del fabbricato:
Anno di costruzione:
2003
Riscaldamento:
Autonomo
Tipo impianto:
A radiatori
Tipo alimentazione:
Metano

Ti interessa visionare l'immobile?

Fissa un appuntamento  Fissa un appuntamento

Richiedi informazioni

Clicca su Leggi per aprire l'informativa
* Questi campi sono obbligatori

Calcola il tuo mutuo

Semplice e senza impegno
Anticipo

( % )
Mutuo

( % )

pochi semplici passi

inserisci i tuoi dati
Questionario completato
Grazie per aver richiesto un appuntamento senza impegno con un nostro Consulente del Credito e Assicurativo.

Hai inserito correttamente tutti i dati necessari e a breve riceverai una e-mail con un link da convalidare per inviare i tuoi dati.
Affiliato
Studio Castellanza Sas
Corso Matteotti, 11 21053 Castellanza (VA)

Il nostro staff


  • Vincenzo Olivadoti
    Affiliato

  • Ala Zugravu
    Coordinatrice
Corso Matteotti, 11 21053 Castellanza (VA)
Zona: Castellanza-Olgiate Olona
Mostra su mappa
Orari: dalle 09.00 alle 12.30 dalle 15.00 alle 19.30.Sabato mattina dalle 9.00 alle 12.30. Sabato pomeriggio su appuntamento.
Affiliato
Studio Castellanza Sas
Corso Matteotti, 11 21053 Castellanza (VA)

2026 Tecnocasa Franchising S.p.A. - P. IVA 08365160152 - Via Monte Bianco 60/A 20089 Rozzano (MI). Ogni agenzia ha un proprio titolare ed è autonoma. Privacy policy | Policy utilizzo | Cookie policy